
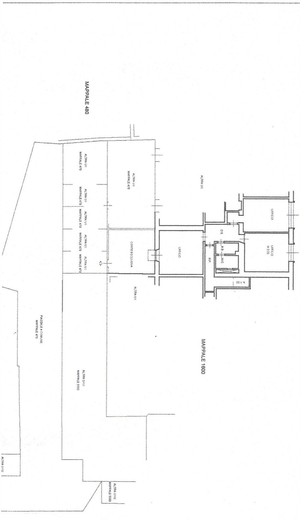
Centrale vicinanze mercato delle vettovaglie , in zona ben fornita di tutti i servizi, proponiamo ampio appartamento posto al piano terra con ingresso indipendente. La soluzione immobiliare di mq. 100 ca è composta da ingresso,sala con angolo cottura, due camere e bagno, giardino pavimentato mq. 25 di proprietà esclusiva . Possibilità di posto auto a parte. Il riscaldamento è autonomo con caldaia a gas. L'immobile è parzialmente da ristrutturare.
Giardino di proprietà 25 mq
Classe G
Prestazione energetica del fabbricato inverno estate
Centrale vicinanze mercato delle vettovaglie , in zona ben fornita di tutti i servizi, proponiamo ampio appartamento posto al piano terra con ingresso indipendente. La soluzione immobiliare di mq. 100 ca è composta da ingresso,sala con angolo cottura, due camere e bagno, giardino pavimentato mq. 25 di proprietà esclusiva . Possibilità di posto auto a parte. Il riscaldamento è autonomo con caldaia a gas. L'immobile è parzialmente da ristrutturare.
Riferimento: 3418
Tipologia: Appartamento
Comune: Livorno
Zona: Cavour
Cucina: Angolo cottura
Bagni: 1
Camere: 2
Box:
Piano: Terra di 2
Anno costruzione: 1900
Stato conservazione: Buono
Stato: Libero
Spese cond. annue €: 600,00
Riscaldamento: Autonomo
Caratteristiche Giardino di proprietà 25 mq
Efficienza energetica
Classe G
Prestazione energetica del fabbricato inverno estate